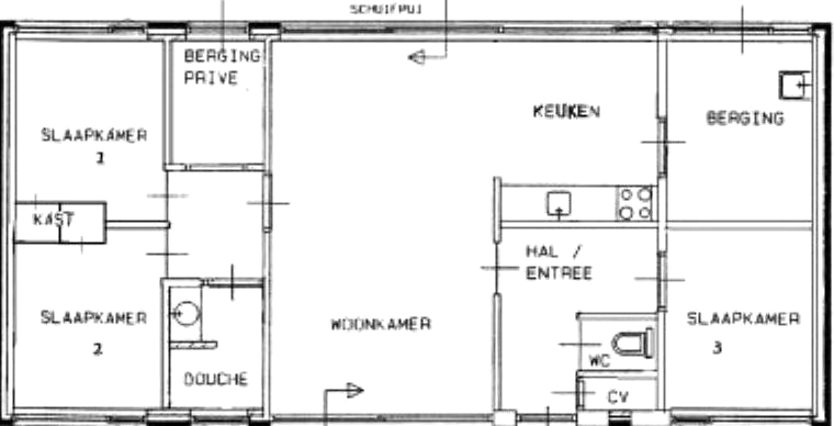
Plattegrond
Navigator Verhuur Foto's woning Geschiedenis VVV

Voor een impressie kunt U met de muis naar de diverse

vertrekken gaan.